Per Calendar Month

£2,000 pcm

Back Grantley Street, Wakefield

The property comprises a secure yard with two office units, situated in a convenient and accessible location off Back Grantley…

Share

Key features

  • Large Enclosed Yard
  • Good Sized Reception Area
  • Two Units
  • Office Space
  • Kitchen
  • Shower Room

Full property

The property comprises a secure yard with two office units, situated in a convenient and accessible location off Back Grantley Street, Wakefield. The site offers flexible accommodation suitable for a wide range of business uses, benefiting from good access for vehicles and practical outdoor space. This versatile yard and office setup would suit a number of businesses seeking functional premises in an established commercial area.

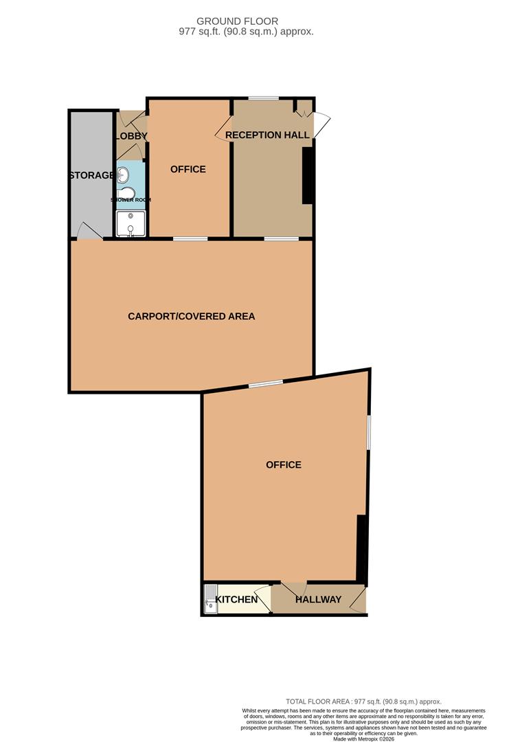
Unit 1 - Office 1

This is a good sized entrance hall with horizontal slatted wall panels. Offering enough space for a small seating area. Door leading to the yard.
Dimensions: 2.38 x 4.07 / 7'9" x 13'4"

Office 2

Office Space with a window to the side.
Dimensions: 2.44 x 4.08 / 8'0" x 13'4"

Shower Room

With a electric shower, low flush wc and hand wash basin.
Dimensions: 1.07 x 2.38 / 3'6" x 7'9"

Unit 2 - Entrance Hall

Dimensions: 0.96 x 2.47 / 3'1" x 8'1"

Main Room

With a window to the side.
Dimensions: 4.54 x 6.17 (max) / 14'10" x 20'2" (max)

Kitchen

Fitted with a stainless steel sink, with wall cupboards above.
Dimensions: 0.99 x 1.72 / 3'2" x 5'7"

External

Externally is a very large yard with gated access. Between the two office buildings is a carport/covered area.

Read more

Interested in this property?

Or you can call us on:   01977 285 111

Get in touch

Crown Estate Agents, Castleford

22 Bank Street Castleford West Yorkshire
WF10 1JD
01977 285 111
info@crownestateagents.com