Per Calendar Month

£675 pcm

Castleford Road, Normanton

  •   2 Bedrooms
  •   1 Bathrooms

Welcome to this impeccably designed property in Normanton. Situated in a desirable location, this flat offers access to local amenities,…

Share

Key features

  • First Floor Flat
  • Good Size Lounge/Diner
  • Fitted Modern Kitchen
  • Two Good Sized Bedrooms
  • Three Piece Bathroom
  • Council Tax Band A
  • EPC Grade D

Full property

Welcome to this impeccably designed property in Normanton. Situated in a desirable location, this flat offers access to local amenities, including shops, cafes, and transport links, ensuring a vibrant and convenient lifestyle at your doorstep. With its perfect design and prime location, this property presents an exceptional opportunity for comfortable living in a thriving community.

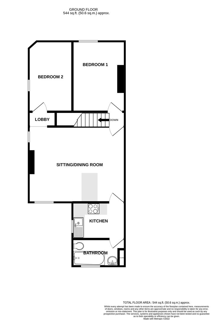
Entrance Lobby

Entrance to flat from paneled door, Stairs to first floor.

Lounge/Diner

Large, bright dual aspect room with dining area and wall mounted electric fire.
Dimensions: 3.96m x 5.15 (max) / 12'11" x 16'10" (max)

Kitchen

Modern fitted units with tiled walls, base and wall cupboards, work surfaces, single drainer stainless steel sink, 4 ring ceramic hob and built in electric oven with extractor hood, plumbing for a washing machine. Electric radiator and rear facing window.
Dimensions: 1.92m x 2.74m / 6'3" x 8'11"

Bathroom

3 piece suite, low flush wc pedestal and paneled bath with electric shower over. Cylinder/airing cupboard, opaque window, vinyl floor and shower rail.
Dimensions: 1.463m x 2.44m / 4'9" x 8'0"

Bedroom 1

Carpeted room with tv point and electric radiator, window to the front.
Dimensions: 2.74m x 3.719m (max) / 8'11" x 12'2" (max)

Bedroom 2

Carpeted room with tv point and electric radiator, window to side.
Dimensions: 2.286m x 3.719m (max) / 7'5" x 12'2" (max)

Read more

Interested in this property?

Or you can call us on:   01977 285 111

Get in touch

Crown Estate Agents, Castleford

22 Bank Street Castleford West Yorkshire
WF10 1JD
01977 285 111
info@crownestateagents.com