PCM

£900 pcm

Finkle Street, Pontefract

Located on Finkle Street in the heart of Pontefract, this well-presented commercial property is currently operating as a Turkish restaurant.…

Share

Key features

  • Prime location
  • Currently trading as a Turkish restaurant
  • Seating for over 34 diners in a comfortable layout
  • Well-positioned bar area with space for alcohol, glassware, fridges, and till system
  • Good-sized kitchen with ample room for equipment
  • Dedicated pot washing and preparation area with double sink, spray, chiller, and shelving
  • Side access door for deliveries and waste management
  • Customer WC facilities
  • Suitable for alternative hospitality ventures
  • Ready to Trade opportunity

Full property

Located on Finkle Street in the heart of Pontefract, this well-presented commercial property is currently operating as a Turkish restaurant. presenting an excellent turnkey opportunity for those looking to continue as a restaurant or adapt the space for a new hospitality venture.

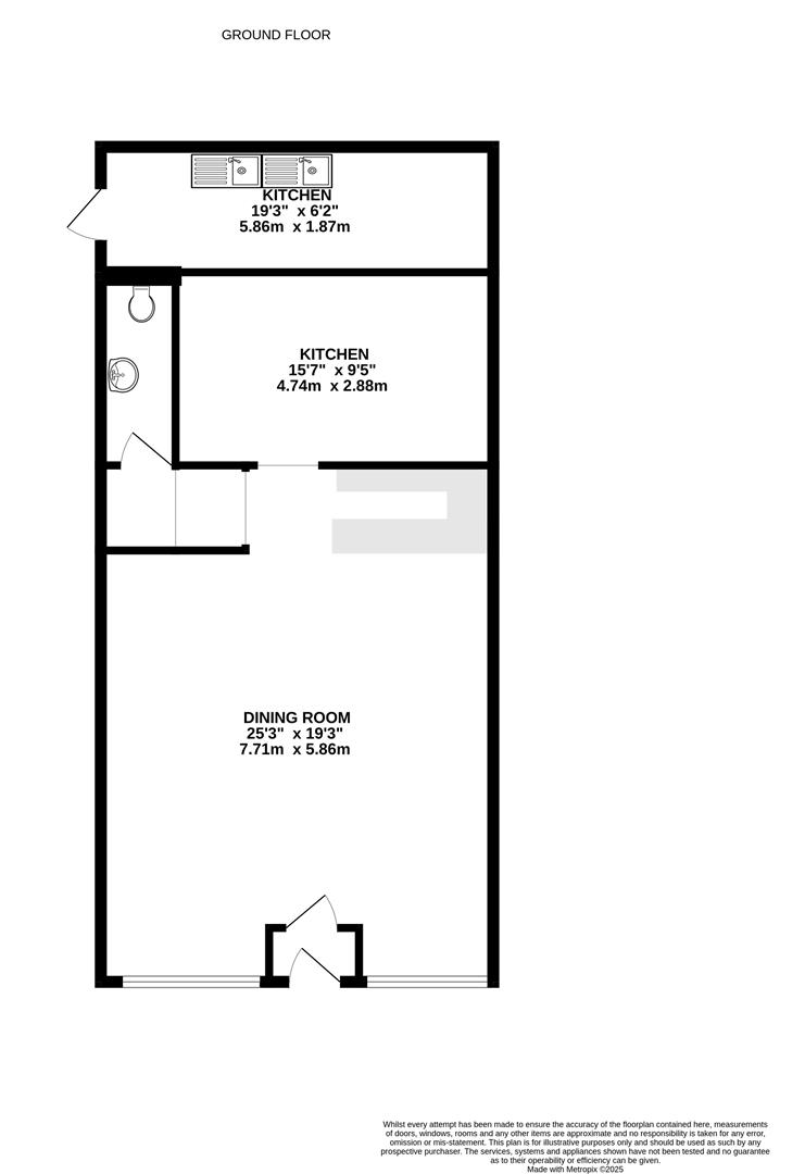
Seating Area

The restaurant features a well-arranged seating area with capacity for over 34 diners, offering a comfortable and welcoming environment. The layout provides flexibility to accommodate both small groups and larger parties, with space designed to maximise covers while maintaining a relaxed dining atmosphere. The décor and ample light enhance the setting, making it suitable for a variety of dining concepts.
Dimensions: 5.62 x 6.54 / 18'5" x 21'5"

Bar Area

The property includes a well-positioned bar area with ample space for displaying and storing alcoholic beverages, glassware, and accessories. The layout provides room for a till system, under-counter fridges, and additional storage, ensuring an efficient and practical setup for serving customers. Designed for both functionality and ease of service, the bar complements the main dining area and enhances the overall flow of the restaurant.
Dimensions: 1.45 x 4.04 / 4'9" x 13'3"

Kitchen

The property benefits from a good-sized kitchen measuring approximately 3.78m x 4.09m, providing ample space to accommodate all essential equipment required for the efficient operation of a busy restaurant. The layout allows for practical workflow and food preparation, with sufficient room for cooking appliances, refrigeration, and storage, making it well-suited to a wide range of cuisines.
Dimensions: 3.78 x 4.09 / 12'4" x 13'5"

Prep and Pot Washing Room

The property includes a dedicated pot washing and preparation area, fitted with a double sink and spray for efficient cleaning. A chiller and ample shelving provide convenient storage and organisation, while a side access door adds practicality for deliveries and waste management. This space is designed to support the smooth running of the kitchen and overall restaurant operations.
Dimensions: 1.87 x 3.86 / 6'1" x 12'7"

WC

Dimensions: 1.09 x 3.66 / 3'6" x 12'0"

Read more

Interested in this property?

Or you can call us on:   01977 600 633

Get in touch

Crown Estate Agents, Pontefract

39-41 Ropergate End Pontefract, WF8 1JX
01977 600 633
pontefract@crownestateagents.com